Protea

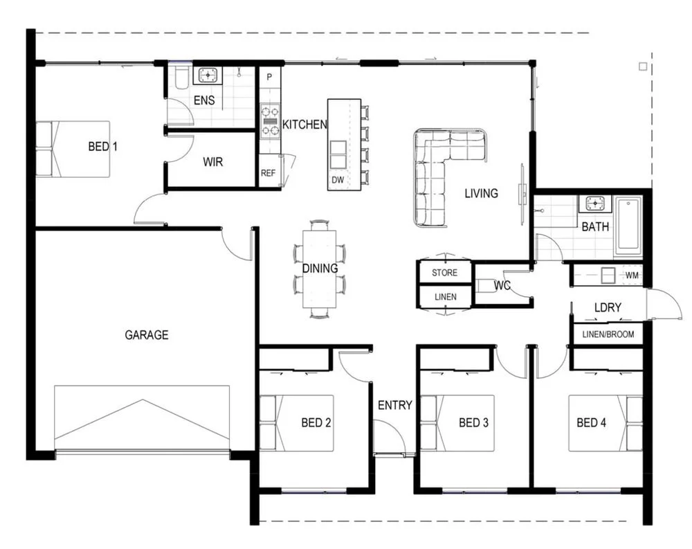
HOUSE SIZE: 180 (m2)

​ROOMS: 4 bedroom, Ensuite, bathroom, living area, dining, kitchen, laundry and garage.

Protea Pre Designed Sustainable Home Ready to Build
Protea Pre Designed Sustainable Home Ready to Build
— Make an enquiry